Princess (cu Garaj)
| Arie Construita | 143.44mp. |
| Arie Utila | 101.00mp. |
| Arie Locuibila | 60.90mp. |
| Numar Camere | 4 |



The Princess (cu Garaj)
Casă P+1 – eleganță, terasă generoasă și garaj integrat
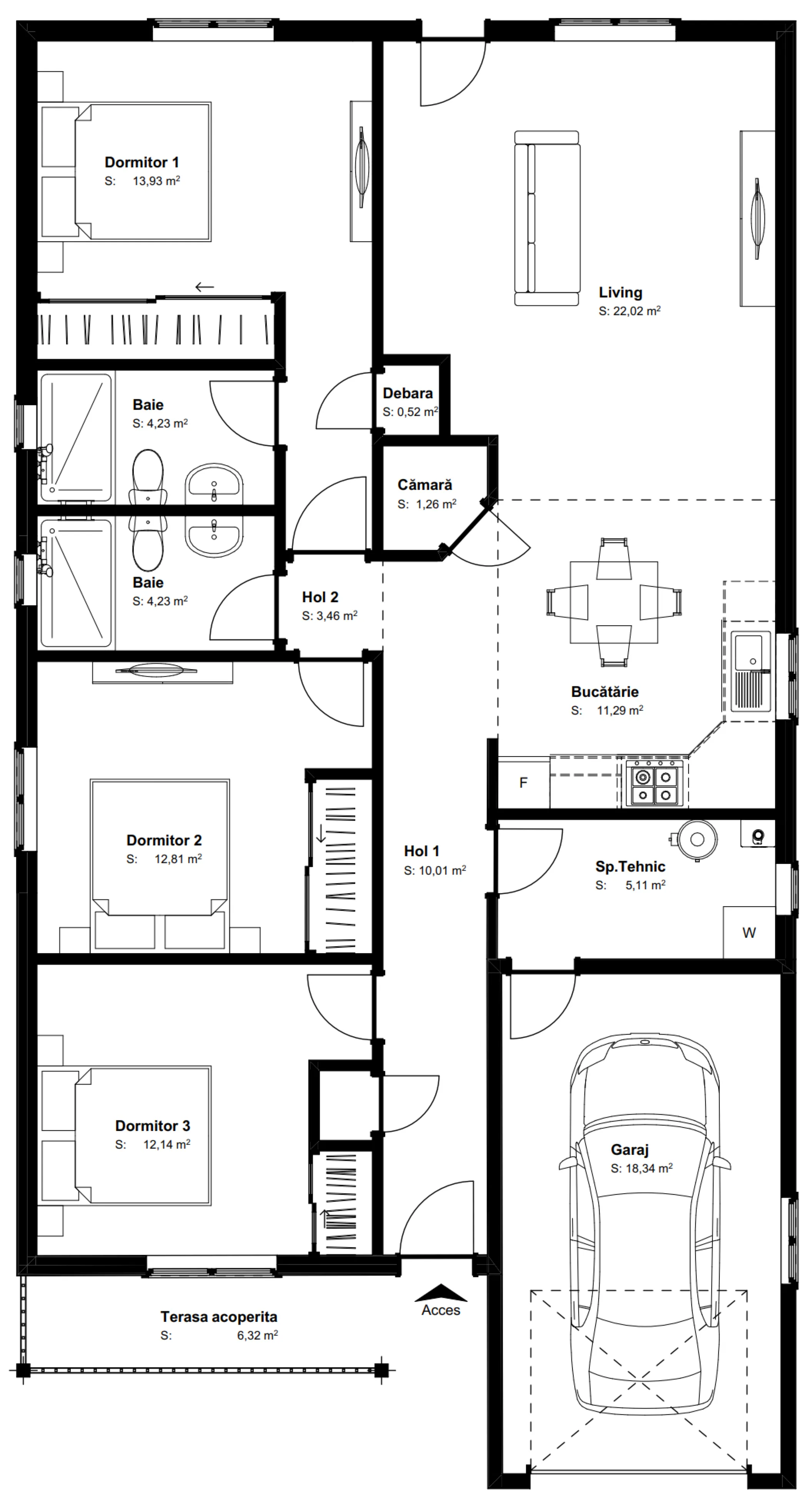
Proprietate cu regim de înălțime P+1, ce combină spațiul generos cu o siluetă distinctă, datorită adâncimii remarcabile de 16,9 m la o lățime de 9,3 m. Cu un living de 117 mp, configurată în 3 dormitoare și 2 băi, și garaj pentru 1 mașină (25 mp), Princess se adresează familiilor care doresc atât spațiu interior, cât și o zonă exterioară generoasă.
Locuința oferă o compartimentare elegantă, distribuită pe două niveluri:
- Nivel parter: living și bucătărie spațioase, baie de serviciu, acces la garaj
- Nivel etaj: 3 dormitoare confortabile și baie completă
- Garaj integrat pentru 1 mașină (25 mp)
Accesul principal se face printr-o terasă acoperită de 10,7 mp — una dintre cele mai generoase din catalog — ce poate fi amenajată ca un adevărat salon exterior.
Proiectul este ideal pentru familiile care apreciază spațiul exterior bine definit, o compartimentare generoasă și o prezență arhitecturală distinctă pe teren lung.
Recenziile Clienților 3E House
Descoperă experiențele și impresiile clienților noștri, reflectate în recenzii autentice despre colaborarea și serviciile 3E HOUSE.



